108C/609 Victoria Street, Abbotsford
Apartment
Luxurious Apartment: Contemporary Living with Resort-Like Amenities
* Please book your inspections in advance.
Otherwise it may be cancelled unannounced.
property is currently tenanted till 31/08/2026
This stunning Green Square apartment epitomizes modern living, showcasing stylish sophistication and exceptional lifestyle appeal. With its remarkable features and outstanding resident amenities, it offers a resort-style atmosphere that is hard to beat.
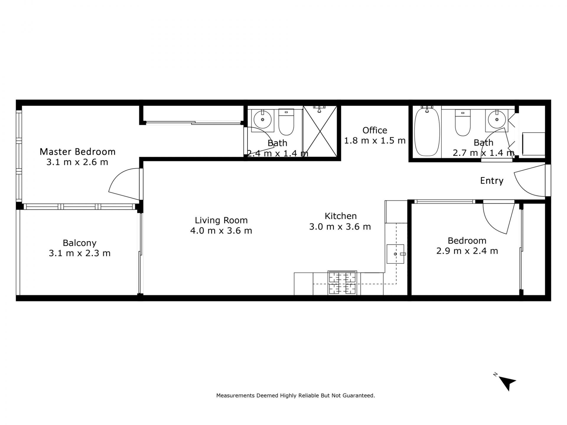
The apartment is beautifully designed to create a spacious and airy feel. It features a streamlined kitchen, a meals area, and a study nook, all equipped with stone benchtops, mirrored splashbacks, and Smeg appliances, including a semi-integrated dishwasher. The sunlit living room flows effortlessly onto the sheltered balcony.
Both bedrooms come with mirrored built-in robes, and the master bedroom boasts a stylish ensuite. A second bathroom, complete with a shower, bath, and toilet, services the second bedroom and guests.
Additional quality features include a European laundry, split system heating and air conditioning, intercom system, secure lift access, a storage cage, and a basement parking space. Residents can also enjoy exclusive facilities, including a heated swimming pool, sauna, gym, in-house library and lounge with a fireplace, as well as a rooftop terrace equipped with BBQs.
This apartment is situated in a prime location, just moments from the Victoria Gardens Shopping Centre, IKEA (Abbotsford), cafes, and restaurants. It is also close to the Yarra River, Williams Reserve, Studley Park, walking and cycling trails, excellent schools, and public transport options.
Otherwise it may be cancelled unannounced.
property is currently tenanted till 31/08/2026
This stunning Green Square apartment epitomizes modern living, showcasing stylish sophistication and exceptional lifestyle appeal. With its remarkable features and outstanding resident amenities, it offers a resort-style atmosphere that is hard to beat.
The apartment is beautifully designed to create a spacious and airy feel. It features a streamlined kitchen, a meals area, and a study nook, all equipped with stone benchtops, mirrored splashbacks, and Smeg appliances, including a semi-integrated dishwasher. The sunlit living room flows effortlessly onto the sheltered balcony.
Both bedrooms come with mirrored built-in robes, and the master bedroom boasts a stylish ensuite. A second bathroom, complete with a shower, bath, and toilet, services the second bedroom and guests.
Additional quality features include a European laundry, split system heating and air conditioning, intercom system, secure lift access, a storage cage, and a basement parking space. Residents can also enjoy exclusive facilities, including a heated swimming pool, sauna, gym, in-house library and lounge with a fireplace, as well as a rooftop terrace equipped with BBQs.
This apartment is situated in a prime location, just moments from the Victoria Gardens Shopping Centre, IKEA (Abbotsford), cafes, and restaurants. It is also close to the Yarra River, Williams Reserve, Studley Park, walking and cycling trails, excellent schools, and public transport options.
